Paulmar Realty

  • 8098709890
  • paulmar-realty.easybroker.com

Local de 1,037 mts 2 en alquiler Evaristo Morales

Evaristo Morales, Santo Domingo Centro (Distrito Nacional)

US$ 4,096,150 For Sale

  • 58 Parking spaces
  • 1,037 m² total space
  • 2024 Age
  • 2 Floor
  • EB-SV6736 ID
Description

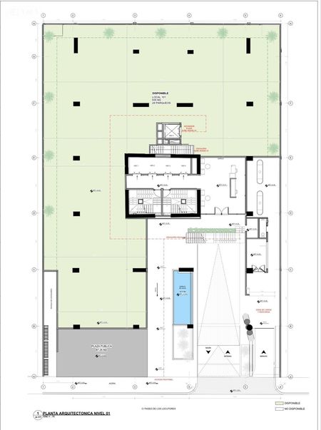
El area comercial de Eco Residences se encuentra en los Niveles 1 y 2, de este novedoso y céntrico proyecto de uso mixto residencial | comercial y cuenta con con 1,935 mts2 en alquiler.



-58 parqueos exclusivos

-Ascensor exclusivo uso comercial

-Servicios eléctricos independientes de area residencial

-Planta eléctrica

-Pre instalación aires acondicionados

-Locales se entregan en obra gris



Ubicado en la Calle Paseo de los Locutores, Evaristo Morales de la ciudad Santo Domingo, Distrito Nacional, a pasos de la Avenida Winston Churchill, integra de manera planificada una combinación de tiendas, oficinas, recreación y residencias.



Está orientado a los elementos de un entorno de trabajar - vivir - jugar

Una expresión arquitectónica que busca maximizar el uso del espacio, tiende a reducir el tráfico y la expansión, empleando de forma sostenible los recursos y el espacio, adaptándose a las necesidades de su entorno y ofreciendo a los habitantes de la ciudad la creación de espacios llenos de diversidad.



Locales en alquiler Nivel 1 y Nivel 2 con diferentes alternativas de acuerdo a tu requerimiento de espacio:



NIVEL 2



Propuesta 1



Piso 2 completo 1,037 mts2 - US$27.00 x mt 2 - US$32,174

Paulmar Realty

  • 8098709890
  • paulmar-realty.easybroker.com