Paulmar Realty

  • 8098709890
  • paulmar-realty.easybroker.com

Naves industriales Aut. Duarte Santo Domingo Oeste

Santo Domingo Centro (Distrito Nacional)

US$ 13,125 For Rent

  • 1 Parking spaces
  • 1,250 m² total space
  • 10,000 m² Lot Size
  • EB-UU2103 ID
Description

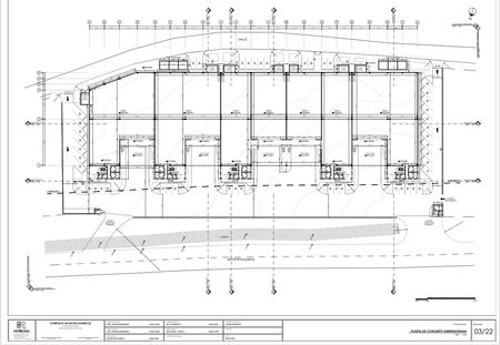
Centro Logístico Duarte – Naves Industriales en AlquilerEl Centro Logístico Duarte está ubicado en el centro geográfico de la República Dominicana, con acceso directo a la Autopista Duarte, Autopista Duarte Vieja y a un minuto de la Circunvalación de Santo Domingo. Frente al Parque Industrial Duarte, forma parte de un ecosistema empresarial ideal para operaciones de almacenamiento, distribución y logística.Características Generales • 6,850 m² de construcción total • (4) naves de 1,400 m² cada una • (1) nave de 1,250 m² • Altura de 12 metros • Mezzanine y oficinas en cada nave • 10,000 m² de solar • Ramps techadas y amplias áreas de maniobra • Pisos industriales de alta resistencia • (4) puertas enrollables por nave (20 en total) • Espacios para furgones y montacargas • Oficinas integradas • Garita de seguridad con baño • Cuartos de servidores • Tres baños por nave • Más de 50 parqueos • Luminaria LED e instalaciones industriales • Transformador trifásico, circuito 24 horas EDESUR • Gabinetes contra incendio • Cisterna con pozo • Cuartos de máquinas • Área de zafacones • Áreas verdes¿Buscas un centro logístico con altura, maniobrabilidad y ubicación estratégica? Llámame para más detalles y visitas.Listos para llevar tu operación al siguiente nivel.

Paulmar Realty

  • 8098709890
  • paulmar-realty.easybroker.com

Paulmar Realty

  • 8098709890
  • paulmar-realty.easybroker.com