Paulmar Realty

  • 8098709890
  • paulmar-realty.easybroker.com

SOLAR EN ALQUILER UBICADO EN LA AVENIDA ROBERTO PASTORIZA

Ensanche Naco, Santo Domingo Centro (Distrito Nacional)

US$ 9,000 For Rent

  • 554.83 m² Lot Size
  • EB-UG3890 ID
Description

Solar en alquiler sobre la avenida Roberto Pastoriza, en el corazón del ensanche Naco, una de las zonas de mayor dinamismo comercial de la ciudad.

Todas las opciones incluyen:

Acceso vehicular cómodo
Terreno semi techado
Planta eléctrica y baño común
Estructura para letrero con excelente visibilidad
Operación activa de DEQUESÓN (sin afectar el área arrendada)

OPCIÓN A – 473.27 m² (US$8,000 + ITBIS)
• Área de uso exclusivo: 473.27 m²
• Área común de acceso: 93 m²
• Ideal para almacenaje con posibilidad de exhibición discreta
• Buena circulación interna

OPCIÓN B – 554.83 m² (US$9,000 + ITBIS)
• Área de uso exclusivo: 554.83 m²
• Terreno rectangular y despejado
• Perfecto para almacenaje a gran escala

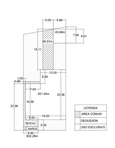
OPCIÓN C – 401.44 m² + Vitrina de 45.66 m² (US$8,000 + ITBIS)
• Área de uso exclusivo: 401.44 m²
• Área de vitrina con visibilidad directa: 45.66 m²
• Área común de circulación: 95.57 m²
• Ideal para almacenaje y exhibición vehicular de alto impacto.

Paulmar Realty

  • 8098709890
  • paulmar-realty.easybroker.com