Locales comerciales Alquiler ECO 23 Evaristo Morales, Santo Domingo

Evaristo Morales, Santo Domingo Centro (Distrito Nacional), Santo Domingo

  • US$ 5,952 En Renta
  • US$ 5,952 En Renta
  • 1 Baños
  • 186 m² Superficie total
Ver Tour Virtual

Detalles

  • Tipo: Local Comercial
  • ID: EB-UE2135
  • Clave interna: 1940
  • Baños: 1
  • Piso: 2
  • Mantenimiento: 6

Descripción

ECO 23 – Plaza Comercial en Venta y Alquiler

Ubicación Estratégica en Evaristo Morales, Santo Domingo

ECO 23 es una moderna plaza de uso mixto en el corazón de Evaristo Morales. Diseñada para inversionistas y negocios que buscan una ubicación privilegiada, combina dos niveles comerciales independientes con un complejo residencial de 20,322 m² de construcción.

Características Clave

• Locales con 4.05 m de altura, amplios y luminosos.

• Accesos independientes desde la calle y parqueos.

• 57 parqueos soterrados distribuidos en los primeros niveles.

• Lobby de recepción, elevador Mitsubishi (11 personas) y escaleras de acceso rápido.

• Dos plantas eléctricas GENMAC de 209 KW.

• Mantenimiento estimado de USD 5 a 6 por m².

Opción de Venta

• Venta Total (1,972.90 m²): USD 7,792,955 (USD 3,950/m²).

• Nivel 1 (935 m²): USD 3,693,250.

• Nivel 2 (1,037 m²): USD 4,096,150.

Opción de Alquiler

• Alquiler Total (1,972.90 m²): USD 61,160 mensuales (USD 31/m²) más ITBIS y mantenimiento.

• Alquiler por niveles:

• Nivel 1 (935 m²): USD 31,790 mensuales más ITBIS y mantenimiento.

• Nivel 2 (1,037 m²): USD 31,110 mensuales más ITBIS y mantenimiento.

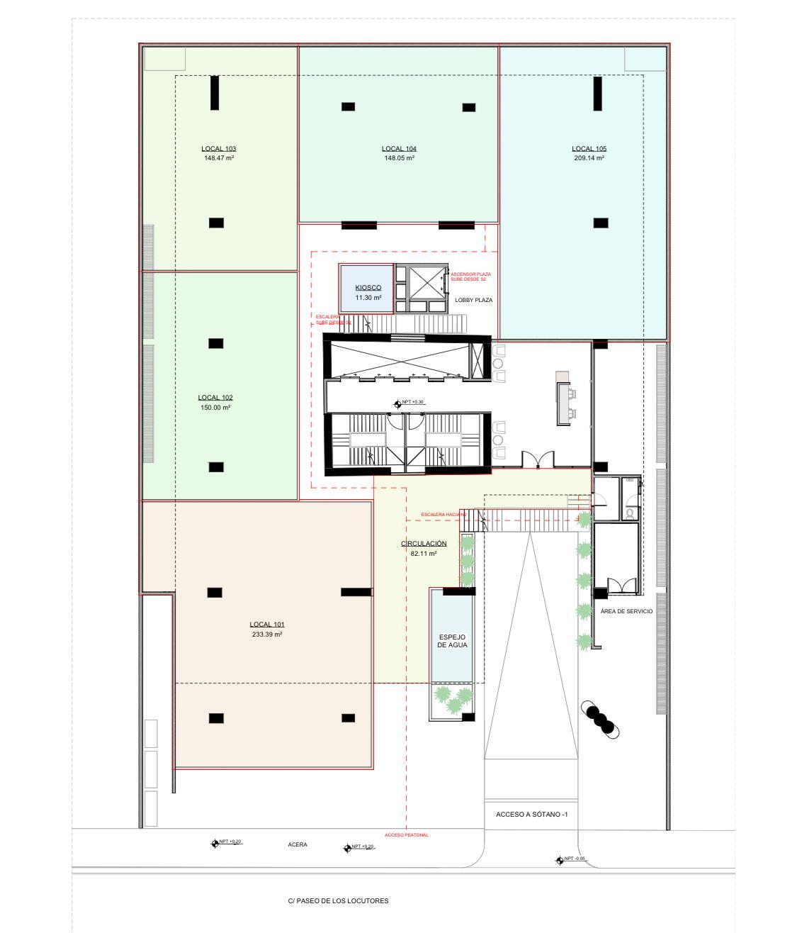
Alquiler parcial por locales:

• Local 101 (Nivel 1): 233 m² – USD 8,155 mensuales más ITBIS y mantenimiento.

• Local 102 (Nivel 1): 150 m² – USD 4,800 mensuales más ITBIS y mantenimiento.

• Local 103 (Nivel 1): 149 m² – USD 4,470 mensuales más ITBIS y mantenimiento.

• Local 104 (Nivel 1): 148 m² – USD 4,440 mensuales más ITBIS y mantenimiento.

• Local 105 (Nivel 1): 209 m² – USD 5,852 mensuales más ITBIS y mantenimiento.

• Local 201 (Nivel 2): 215 m² – USD 7,525 mensuales más ITBIS y mantenimiento.

• Local 202 (Nivel 2): 228 m² – USD 7,980 mensuales más ITBIS y mantenimiento.

• Local 203 (Nivel 2): 186 m² – USD 5,952 mensuales más ITBIS y mantenimiento.

• Local 204 (Nivel 2): 167 m² – USD 5,010 mensuales más ITBIS y mantenimiento.

• Local 205 (Nivel 2): 122 m² – USD 3,660 mensuales más ITBIS y mantenimiento.

• Local 206 (Nivel 2): 150 m² – USD 4,800 mensuales más ITBIS y mantenimiento.

Beneficios Adicionales

ECO 23 ofrece una ubicación privilegiada y moderna en Santo Domingo, ideal para comercios, oficinas y negocios que buscan máxima visibilidad, comodidad y proyección de crecimiento.

Locales en obra gris, listos para que los personalices a tu gusto.

Contáctanos y agenda tu cita para ver tu próximo local comercial!
Paulmar Realty

Paulmar Realty

EB-UE2135
Imprimir propiedad

Ubicación

Evaristo Morales, Santo Domingo Centro (Distrito Nacional), Santo Domingo

Propiedades destacadas